New Shophouse TOP OFFER
- Eugera Group
- 15. März 2021
- 1 Min. Lesezeit
Shophouse new Top price, best quality, available at short notice, construction management, construction organization.
Total area including roof terrace: 376.64 sq.m

Shophouse new offer
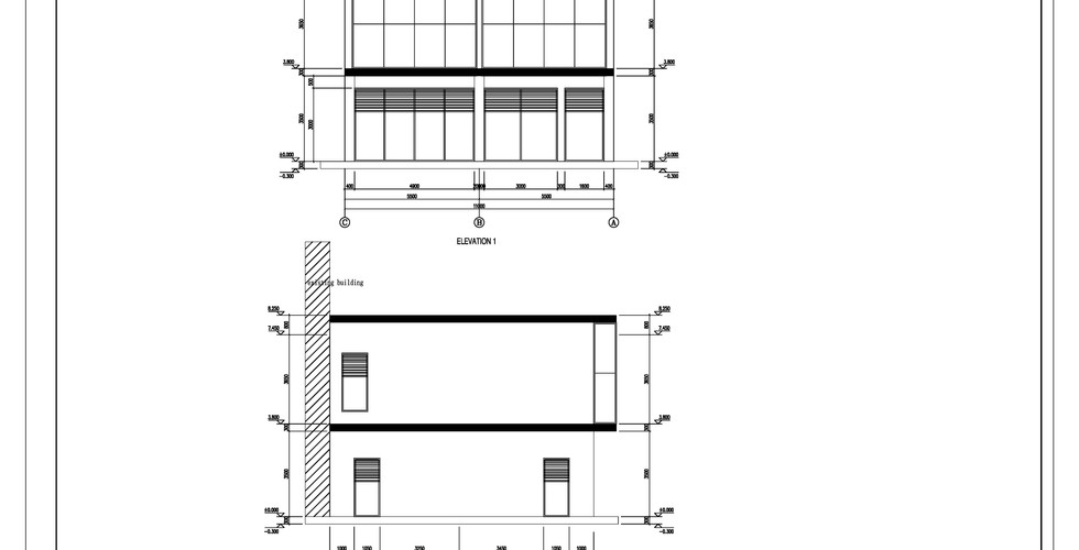
Ground floor: width: 11000 mm / 11 m x length 10800 mm / 10.8 m = 118.8 sqm
First floor: width: 11000 mm / 11 m x length 11725 mm / 11.72 m
128.92 sqm
Roof terrace: 11000 mm / 11 m x length 11725 mm / 11.72 m
128.92 sqm
Steel structure construction - painted steel structure
Earthquake-proof up to M7.8
Wall structure outer wall: ALC concrete wall 200 mm
Inner wall construction: ALC aerated concrete wall 100 mm/150mm
Floor: Comfloor steel-concrete floor
Termo windows double glazed
Automatic sliding doors
Incl. sanitary facilities
Floors: 2
Included: stairs
Rooftop walk-in reinforced concrete ceiling
Roof terrace railings made of stainless steel and safety glass
Windows with aluminum shutters
Standards: SGS, DIN and ISO norms
Price: USD 39,000,-- FOB Price
We offer direct purchase or rent purchase over 24 months
All plans to the shophouse in the side show
Extras
Coffe container complete: USD 9,900,--

Floor tiles
Electrical fuse box
Electrical pre-wiring 3-wire cable 1.5Q and 2.5Q
LED lighting on both floors
Delivery: to Indonesia as well as to Malaysia, Philippina, Thailand and Africa
Mail: info@eugera-group.com































Kommentare